Are you a landlord looking for a hassle-free way to create a lease agreement for your tenants? Or are you a renter in need of a legal document to protect your rights? Look no further, as free printable lease templates are here to save the day!
These templates are a convenient and cost-effective solution for both landlords and tenants. They provide a framework for outlining the terms and conditions of a rental agreement, ensuring that both parties are on the same page from the get-go. With just a few clicks, you can easily customize a lease template to suit your specific needs and requirements.
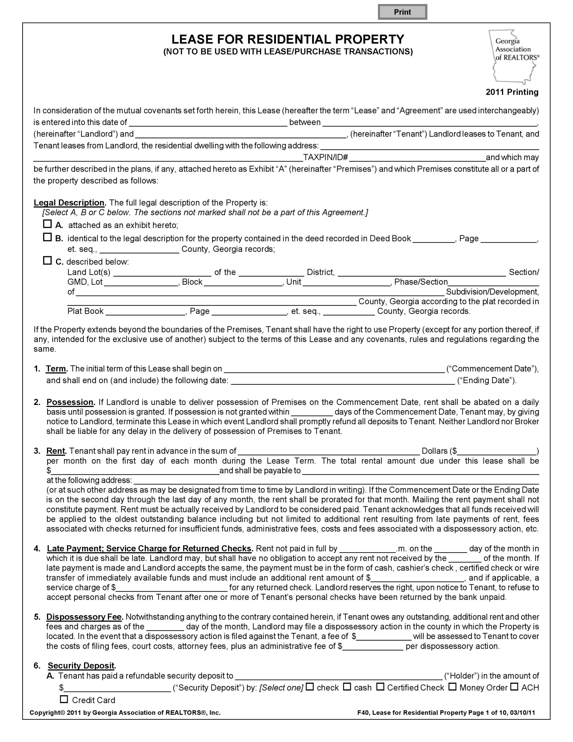
Free Printable Lease Template
Whether you’re renting out a residential property, commercial space, or vacation rental, there’s a free printable lease template out there for you. These templates typically include sections for important details such as the names of the parties involved, the rental property address, the term of the lease, the monthly rent amount, and any rules or regulations that must be followed.
By using a free printable lease template, you can ensure that all necessary information is included in the agreement, reducing the likelihood of disputes or misunderstandings down the line. It also provides a level of legal protection for both landlords and tenants, as the terms of the lease are clearly documented and agreed upon.
Furthermore, many free printable lease templates are customizable, allowing you to add or remove clauses as needed. This flexibility makes it easy to tailor the agreement to your specific situation, whether you’re a first-time landlord or a seasoned renter.
In conclusion, free printable lease templates are a valuable tool for landlords and tenants alike. They offer a simple and efficient way to create a legally binding rental agreement, providing peace of mind for all parties involved. So why wait? Take advantage of these free resources today and ensure a smooth and successful rental experience for everyone.
